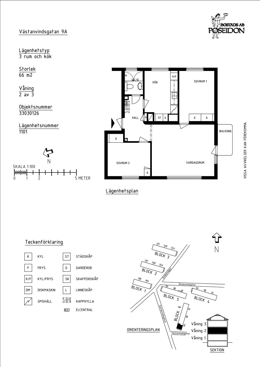
Västanvindsgatan 9A

Lundby / Eriksberg • 62 kvm • 3 rum
1 mot 1
Lägenhetsbyte - Västanvindsgatan 9A
1 mot 1
Lägenhetsbyte - Västanvindsgatan 9A
Lägenhetsbyte - Västanvindsgatan 9A
Lägenhetsbyte - Västanvindsgatan 9A
Lägenhetsbyte - Västanvindsgatan 9A
Lägenhetsbyte - Västanvindsgatan 9A
Lägenhetsbyte - Västanvindsgatan 9A
Lägenhetsbyte - Västanvindsgatan 9A
Lägenhetsbyte - Västanvindsgatan 9A
Lägenhetsbyte - Västanvindsgatan 9A
/ 9

Västanvindsgatan 9A

Önskar byta till en lägenhet i Stockholm då jag ska flytta ihop med min partner. Uppfyller kraven för att få byta lägenhet.

En välplanerad och härlig hörnlägenhet byggd 1946 med fönster i 3 väderstreck. Lägenheten ligger i Kvillebäcken, ett lugnt och mysigt område, ett stenkast från expansiva Backaplan, med närhet till både naturområde och innerstan.

BOSTADEN
* 2023: Byte av stammar och ventilation
* 2023: Nytt helkaklat badrum
* 2025: Ny rymlig kyl/frys (200cm hög)
* Möjlighet att ta över installerad diskmaskin (45cm bred)
* Takhöjd: 270 cm
* Brädgolv genomgående i alla rum
* Som jag har fått till mig är det möjligt att uppgradera standardnivån i lägenheten och mot en högre månadshyra få ytskikten renoverade. Det går också att behålla den lägre månadshyran och göra renoveringen själv
* Fint ljusinsläpp och bra vädringsmöjligheter med fönster i tre väderstreck
* Stor balkong i söderläge ( 1 av 6 balkonger i hela huset)
* Båda sovrummen rymmer med lätthet dubbelsängar
* Persienner i alla rum
* Garderobsvägg i ena sovrummet
* Mindre klädkammare i hall och i andra sovrummet
* Fiber indraget
* Stor tvättstuga med digitalt bokningssystem och torkrum i grannhuset
* Cykelförråd och stort förråd i källaren
* Parkeringsplats går att hyra för 740kr/månad, finns många platser lediga
* Gratis parkering längs väg finns i närområdet för besökare, även billig gästparkering finns.
* Trevliga grannar som har bott i området länge. De anordnar bland annat grillkvällar och hjälper gärna varandra, men respekterar verkligen ens privatliv och om man inte vill delta.

OMRÅDET
* 5 min promenad till spårvagnshållplats där linje 5, 6 och 10 går, samt flera bussar.
- 8 min till centralstationen.
- 2 min till Hjalmar Brantingsplatsen, som är en kollektivtrafiksknutpunkt och ett köpcentrumområde.
* 5 min promenad till torg med COOP, Willys, frukthandlare, flera restauranger, postombud, vårdcentral, apotek, café, frisör, pub & second hand-butiker.
* Flera förskolor i närheten.
* 8 min promenad till både Bjurslättskolan och nybygda Lundbyskolan.
* 6 min bilfärd till Slätta damm och Hisingsparken.

Om bostaden

Typ

Hyresrätt

Storlek

62 kvm / 3 rum

Hyra

8 467 kr

Hyresvärd

Poseidon

Våning

2 tr

Område

Lundby / Eriksberg

Detaljer

Balkong/Terass

Tvättstuga

Diskmaskin

Barnvänligt

Ej nedre botten

Om området

Lundby och Eriksberg erbjuder en harmonisk blandning av stadsliv och naturskön omgivning, vilket gör området perfekt för både familjer och yngre par. Här finns närhet till vatten, grönområden och en levande atmosfär med caféer och restauranger som bidrar till en trivsam vardag.

Med utmärkta kommunikationer kan du enkelt nå Göteborgs centrum, samtidigt som du kan njuta av lugnet och gemenskapen i området. Lundby och Eriksberg är verkligen en plats där livskvalitet står i fokus.

Önskad bostad

Typ

Hyresrätt

Minst antal rum

3

Minsta boarea

60 kvm

Max hyra

Ingen gräns

Områden / städer

Universitetet / Ekhagen

Norrmalm / Gamla Stan

Kungsholmen / Essingeöarna

Vasastan

Östermalm / Gärdet / Djurgården

Södermalm / Gröndal

Hammarby / Årsta / Enskede Gård / Sjöstad

Johanneshov / Enskededalen

Enskede

Farsta

Bandhagen / Högdalen

Bagarmossen / Skarpnäck / Sköndal

Saltsjö / Nacka / Hammarby

Intresserad?

Favoritmarkera Kontakta annonsören

För att kunna kontakta annonsören och se alla detaljer måste du själv ha en annons.

Aktiv 6 månader sedan

Avståndsräknare

Bytesverket