Ribbings Väg 83

Sollentuna • 73 kvm • 3 rum
1 mot 1
Lägenhetsbyte - Ribbings Väg 83

Ribbings Väg 83

Den här trean i Edsberg, Sollentuna är perfekt för dig som vill ha nära till naturen och samtidigt hyfsat nära till stad! 
Precis utanför huset ligger ett jättestort område med skog och möjlighet till olika typ av sport och aktiviteter; motionsslingor, fotbollsplaner, Väsjöbacken (skidbacke), tennishall, höghöjdsbana, kolonilottomsområde. Flera sjöar (bland annat populära Rösjön där det finns badplats och camping) och gångavstånd ner till Edsviken där det också finns badberg och kafé.

På 5 min går man ner till Edsbergs centrum där det finns ICA, restauranger, kafé, gym, bibliotek, frisör och ett alldeles nytt hundspa! Busshållplats är 1 min utanför huset och då tar man 607 antingen mot Sollentuna C eller Mörby C.

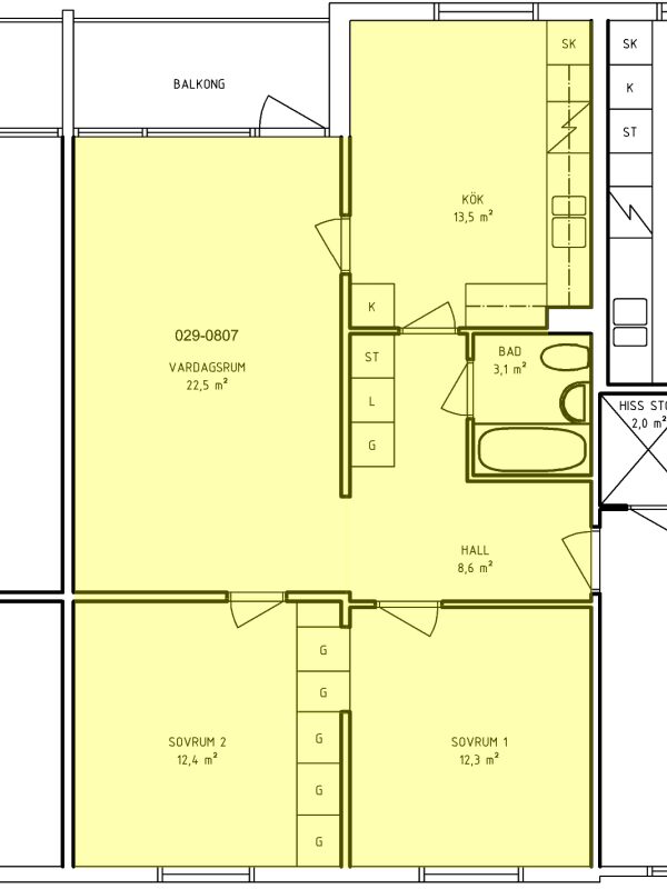
Lägenheten är en rymlig och ljus trea på 73 kvm. Ägs av Sollentunahem.
- Vardagsrummet är 22 kvm och har stort fönster och balkong i söderläge, mot lugn gård.
- Köket har bra förvaringsmöjligheter.
- Två st 12 kvm stora sovrum med inbyggda garderober. Norrläge och ut mot gatan.
- Hall med inbyggda garderober och plats för hylla/sideboard.
- Badrummet har badkar, finns eluttag och man skulle få plats med en sådan där liten tvättmaskin (tvättstuga finns annars i huset)
- En trappa upp med hiss (dock står det BV i kontraktet, vilket inte stämmer...)
- Källarförråd ingår 


Trivs egentligen bra både i lägenheten och området. Men söker byte för att komma närmre arbetsplatsen  (i Solna) och/eller få ner hyran lite och är inte i behov av en trea. 

Om bostaden

Typ

Hyresrätt

Storlek

73 kvm / 3 rum

Hyra

9 500 kr

Hyresvärd

Sollentunahem

Våning

1 tr

Område

Sollentuna

Detaljer

Hiss

Balkong/Terass

Badkar

Tvättstuga

Barnvänligt

Ej nedre botten

Om området

Sollentuna, en charmig del av Norra Stockholm, erbjuder en perfekt balans mellan stadens puls och naturens lugn. Här njuter du av vackra grönområden, mysiga caféer och ett rikt kulturliv som skapar en inbjudande atmosfär för både familjer och unga vuxna.

Med utmärkta kommunikationsmöjligheter till centrala Stockholm och närhet till skolor, affärer och fritidsaktiviteter, blir livskvaliteten här oöverträffad. Sollentuna är inte bara en plats att bo på, utan en livsstil att omfamna.

Önskad bostad

Typ

Hyresrätt

Minst antal rum

1

Minsta boarea

20 kvm

Max hyra

12 500 kr

Områden / städer

Universitetet / Ekhagen

Norrmalm / Gamla Stan

Kungsholmen / Essingeöarna

Vasastan

Östermalm / Gärdet / Djurgården

Södermalm / Gröndal

Hammarby / Årsta / Enskede Gård / Sjöstad

Johanneshov / Enskededalen

Enskede

Bandhagen / Högdalen

Saltsjö / Nacka / Hammarby

Bromma

Solna

Sundbyberg

Danderyd

Sollentuna

Intresserad?

Favoritmarkera Kontakta annonsören

För att kunna kontakta annonsören och se alla detaljer måste du själv ha en annons.

Aktiv 5 månader sedan

Avståndsräknare

Bytesverket