Häggviksvägen 14

Sollentuna • 75 kvm • 3 rum
1 mot 1
Lägenhetsbyte - Häggviksvägen 14

Häggviksvägen 14

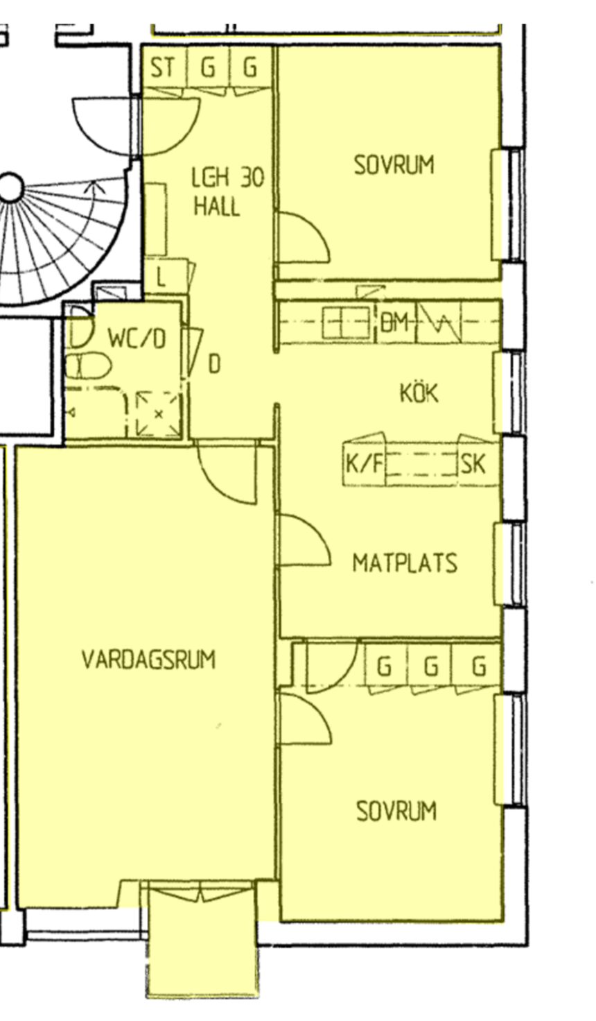
Fin lägenhet med stora sovrum och separat matplats i köket.
Nytt parkettgolv i vardagsrummet och nymålade väggar i vardagsrummet och kök.
Endast ett par minuters promenad till Häggviks station och gångavstånd till både grönområden och Edsviken och Norrviken sjön.
Källarförråd finns.

Om bostaden

Typ

Hyresrätt

Storlek

75 kvm / 3 rum

Hyra

8 742 kr

Hyresvärd

John Mattson

Våning

5 tr

Område

Sollentuna

Detaljer

Hiss

Balkong/Terass

Egen tvättmaskin

Tvättstuga

Diskmaskin

Ej nedre botten

Om området

Sollentuna, en charmig del av Norra Stockholm, erbjuder en perfekt balans mellan stadens puls och naturens lugn. Här njuter du av vackra grönområden, mysiga caféer och ett rikt kulturliv som skapar en inbjudande atmosfär för både familjer och unga vuxna.

Med utmärkta kommunikationsmöjligheter till centrala Stockholm och närhet till skolor, affärer och fritidsaktiviteter, blir livskvaliteten här oöverträffad. Sollentuna är inte bara en plats att bo på, utan en livsstil att omfamna.

Önskad bostad

Typ

Hyresrätt

Minst antal rum

4

Minsta boarea

80 kvm

Max hyra

Ingen gräns

Områden / städer

Solna

Täby

Sollentuna

Krav

Hiss

Balkong/Terass

Intresserad?

Favoritmarkera Kontakta annonsören

För att kunna kontakta annonsören och se alla detaljer måste du själv ha en annons.

Aktiv 4 månader sedan

Avståndsräknare