Askersundsgatan 2

Bandhagen / Högdalen • 60 kvm • 2 rum
1 mot 1
Lägenhetsbyte - Askersundsgatan 2
1 mot 1
Lägenhetsbyte - Askersundsgatan 2
Lägenhetsbyte - Askersundsgatan 2
Lägenhetsbyte - Askersundsgatan 2
Lägenhetsbyte - Askersundsgatan 2
Lägenhetsbyte - Askersundsgatan 2
Lägenhetsbyte - Askersundsgatan 2
Lägenhetsbyte - Askersundsgatan 2
Lägenhetsbyte - Askersundsgatan 2
Lägenhetsbyte - Askersundsgatan 2
Lägenhetsbyte - Askersundsgatan 2
Lägenhetsbyte - Askersundsgatan 2
/ 11

Askersundsgatan 2

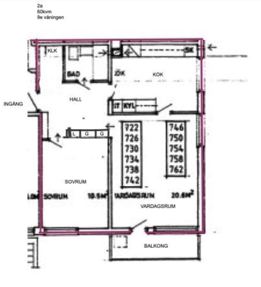
Storlek: 2 rum och kök 
Yta: 60 kvm 
Våning: 9 ( av 11) 
Hyran gäller för 2024. 
Stammbytt kök och badrum: 2017 
Fastigheten har specialdesignade trapphus som gör att du har en helt egen förstuga när du stiger ut ur hissen. 

Ingen insyn, ljus och luftig lägenhet. 
Spisen är en induktionshäll m varmluftsugn. 
Diskmaskin finns ingår inte som standard, kan överlåtas mot ersättning. 

Jag vill inte ha tvättmaskin men det är draget och redo för att installera. 

7 min gångavstånd till Rågsveds t-bana, 5 min till centrum. 
Centrum med Ica, vårdcentral, apotek, konditori. 

Nära till friidrottsbana/fotbollsplan, naturreservat och grönområden. 

Gratis parkering på gatan nedan ( fåtal plaster med städdag tisdag) samt en del gratis gator runtom där man får gå ca 5 min. Finns även betalparkering 2 min ifrån. 

T-bana ( Gröna linjen) 
Globen 10 min 
Gullmarsplan 12 minuter 
Slussen 17 minuter 
Centralen 21 minuter 

10 min gång avstånd till Högdalen Centrum/ t-bana och buss station. 
I högdalen finns även bibliotek, badhus och Matdax , Ica, Coop, System bolaget m.m 

Bilder är blandat från tidigare hyresgäst och precis vid inflytt 2019. 
Bild.1 - Planritning 
Bild.2 - Hall 
Bild.3-6 - kök 
Bild.7 -Mot hall från vardagsrum 
Bild. 8-11 - Vardagsrum 
Bild. 11-12 Sovrummet ( den inredda bilden var tagen innan inflyttning) 
Bild. 13-14 - Badrum ( Installation för tvättmaskin finns ) 


Rymligt förråd på vinden. 
Tvättstuga finns i byggnaden bredvid. ( Nya maskiner 2022)

Om bostaden

Typ

Hyresrätt

Storlek

60 kvm / 2 rum

Hyra

9 561 kr

Hyresvärd

ikano bostad

Våning

5 tr

Område

Bandhagen / Högdalen

Detaljer

Hiss

Balkong/Terass

Diskmaskin

Om området

Bandhagen och Högdalen är två charmiga områden i södra Stockholm som erbjuder en härlig blandning av stadsliv och grönska. Med närhet till både natur och stadens puls kan du njuta av en lugn atmosfär samtidigt som du har alla bekvämligheter runt hörnet.

Här finns mysiga caféer, lokala butiker och bra kommunikationer som tar dig snabbt in till city. Området är perfekt för familjer, med flera parker och lekplatser som inbjuder till aktivitet och gemenskap. Här skapas livskvalitet i varje hörn!

Önskad bostad

Typ

Hyresrätt

Minst antal rum

2

Minsta boarea

40 kvm

Max hyra

10 000 kr

Områden / städer

Nordstaden / Vasastaden / Johanneberg

Örgryte / Johanneberg / Lorensberg

Linnéstaden / Guldheden

Majorna / Högsbo

Asperö, Brännö, Donsö, Köpstadsö, Styrsö, Vrångö

Intresserad?

Favoritmarkera Kontakta annonsören

För att kunna kontakta annonsören och se alla detaljer måste du själv ha en annons.

Aktiv 2 månader sedan

Avståndsräknare